公益社団法人京都市身体障害者団体連合会

075-801-1900(代表)

文字の大きさ
背景色

施設利用

施設概要

施設概要
名称 京都市みぶ身体障害者福祉会館
開設 昭和61年10月1日
所在地 〒604-8804 
京都府京都市中京区壬生坊城町48-6 
京都市みぶ身体障害者福祉会館4F・5F
電話番号 TEL:075-822-0548 FAX:075-822-0455

ご利用案内

利用区分および利用時間
午後 13時30分~17時
夜間 17時30分~20時45分
休館日
毎週月曜日と年末・年始(12月29日から1月3日)
月曜日が祝日(振替休日を含む)の場合、その月曜日は普段通りご利用になれます。
その週の水曜日が振替休館日になります。
臨時休館
  1. 京都府南部(京都・亀岡)の特別警報(暴風・大雨)、暴風警報が発令されたとき。
  2. 修繕工事等により、一般の利用が適当でないと認められるとき。

京都市みぶ身体障害者福祉会館のご紹介

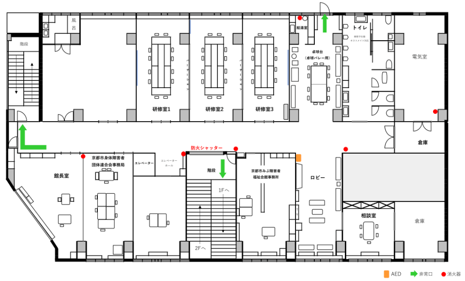
会館平面図 4F
会館平面図
会館平面図 5F
会館平面図

施設詳細

  • 会館全体
    ①会館全体
  • 会館入口
    ②会館入口
  • 1階 玄関ホール
    ③1階 玄関ホール
  • 4階 ロビー
    ④4階 ロビー
  • 4階 エレベーター
    ⑤4階 エレベーター
  • 4階 研修室1
    ⑥4階 研修室1
    • スクリーン壁
    • マイク
      (無線1、有線1、ピン1)
    • ホワイトボード
  • 4階 研修室2
    ⑦4階 研修室2
    • スクリーン壁
    • マイク
      (無線1、有線1、ピン1)
    • ホワイトボード
  • 4階 研修室3
    ⑧4階 研修室3
    • 常設プロジェクター
    • スクリーン壁
    • マイク
      (無線1、有線1、ピン1)
    • ホワイトボード
  • 4階 研修室1・2・3
    ⑨4階 研修室1・2・3
  • 5階障害者芸術ギャラリー
    ⑩5階障害者芸術ギャラリー
    • スクリーン壁
    • ピクチャーレール
    • 展示用パネル
  • 4階 男性トイレ
    ⑪4階 男性トイレ
  • 4階 女性トイレ
    ⑫4階 女性トイレ
  • 4階 多目的トイレ
    ⑬4階 多目的トイレ
    • 多目的シート
      ※多目的トイレは2ヵ所あります。
  • 会館西側駐輪場
    ⑭会館西側駐輪場
    • 自転車9台
      (24~32番のラック)
    • 125cc以下のバイク2台
      (右側のフラット面)
研修室のご利用について

研修室1・2・3はご予約でご利用いただくことが可能です。
施設の利用状況は下記のボタンからご確認ください。

施設利用状況

貸館事業4F研修室1・2・3

利用できる方
  1. 身体障害者手帳を有する人とその介助者。
  2. 身体障害者の福祉に関する事業の関係者。
  3. その他市長が適当と認める者。(障害者総合支援法の対象となる知的・精神障害、難病の方など)
利用できる部屋
  • 研修室1・2・3 定員 各20~25名(パーテーションを開けるとホールとして80名程度の利用が可能になります)
申込方法
  • ≪予約≫
    利用日の3カ月前に属する月の1日の午前9時(1日が土・日・祝の場合は土曜日を除く翌平日)から受付けます。所定の利用申込書に必要事項を記入の上、事務所に提出してください。
    (例)7月に利用する場合の受付は4月1日からになります。
    ただし、1日が休館日の場合は土曜日を除く翌平日から、受け付けします。
    1月のみ1日を4日と読み替えます。
    電話・FAXで仮予約された場合は、2週間以内に所定の申込用紙を提出してください。申込書の受理をもって正式の受付とします。
  • ≪抽選≫
    各月1日の予約開始時間の午前9時~10時の間に予約日時が重複した場合は(※)翌日の午前10時に抽選を行います。
    翌日が土・日・祝の場合は、土曜日を除く翌平日の開館日。
貸出備品

各研修室の備え付け備品以外にプロジェクター、移動式スクリーン、マイク、OHC(書画カメラ)の貸出を行っています。

利用の手引き

車いすの貸出

障害のある方の介護などで臨時的に必要な場合や、団体の催し物等で館外で利用される場合に無償でお貸しいたします。
使用される前までに所定の用紙に必要事項を記入の上、お申込み下さい。

点字パソコンの利用

当会館には、点字パソコンを設置しています。ご利用についての詳細は事務所までお問い合わせください。